



Western Specialty Contractors Completes PT Investigation and Repair Project at University of Iowa Parking Ramp
Western Specialty Contractors’ Des Moines branch has completed an $82,575 post-tension (PT) investigation and repair project at Parking Ramp 1 at the University of Iowa in Iowa City, IA.
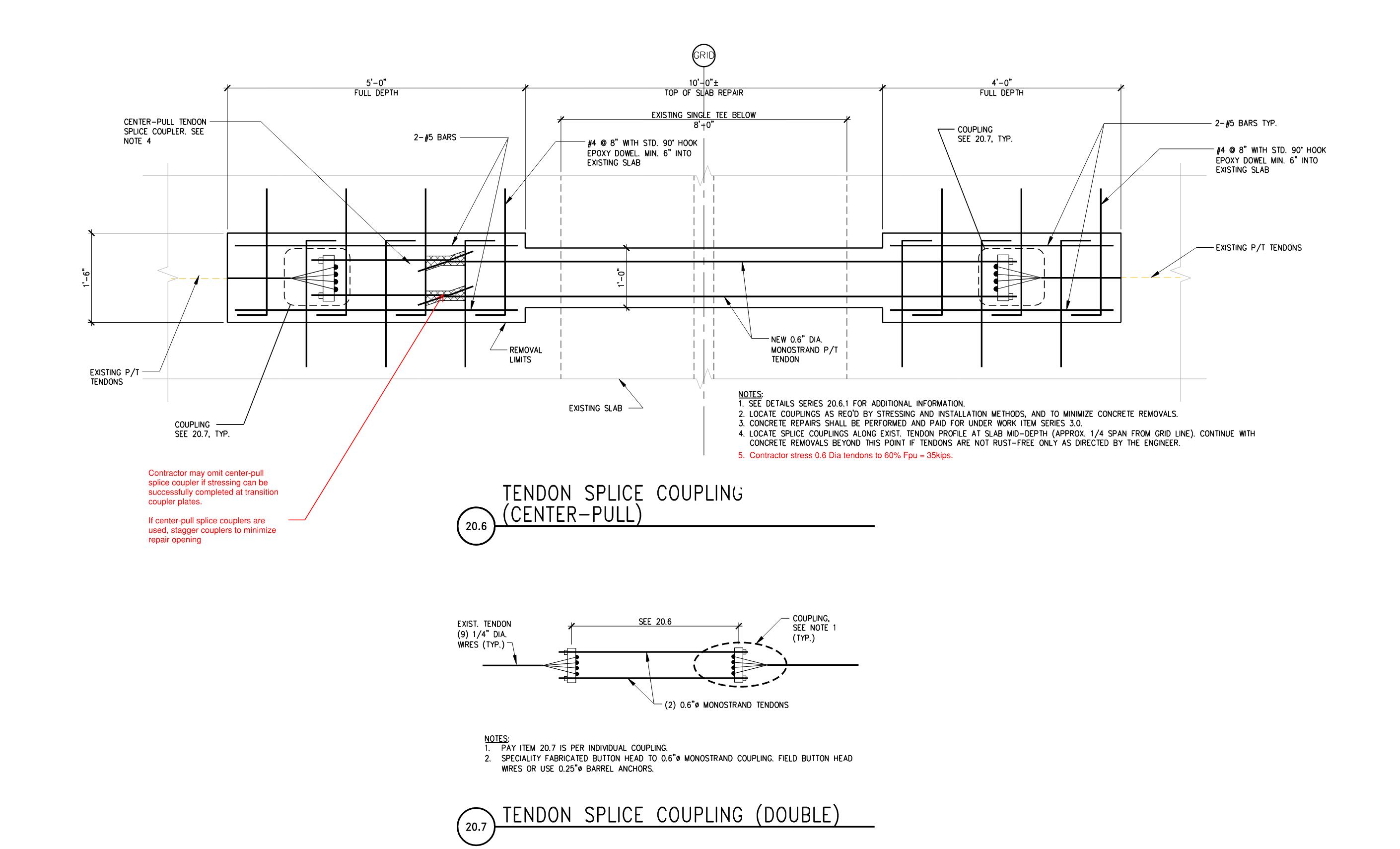
Working as the prime contractor in coordination with Shive-Hattery Inc., Western performed a multi-phase investigation and repair of post-tensioning systems throughout the structure. The project began with Phase I and II investigation openings on Levels 2 through 5, where predetermined tendon locations were exposed for evaluation.
During the investigation, three broken tendons were identified. Western then executed Phase III repairs, locating the breaks in the button head tendon system and removing surrounding concrete and coatings to facilitate repairs. Using a block, wedge and strand conversion method, the team successfully restored the integrity of the damaged tendons.




Due to the size of the repair components, Western extended the bottom of each pour area to ensure proper coverage and structural performance. The team carefully framed and poured each repair to achieve maximum durability and long-term effectiveness.
“This project required a high level of precision and technical expertise due to the nature of the post-tension system,” said Nathan Rath, Project Manager at Western Specialty Contractors. “Our team was able to adapt to the conditions discovered during the investigation and implement effective solutions to restore the structure’s performance.”
The project began on August 18, 2025, and was completed on November 14, 2025. Western finished the work on time and within budget to the satisfaction of the University of Iowa.
Have a project you need completed? Contact the Des Moines branch today.
About Western Specialty Contractors
Family-owned and operated for more than 100 years, Western Specialty Contractors is the nation’s largest specialty contractor in masonry and concrete restoration, waterproofing, and specialty roofing. Western offers a nationwide network of expertise that building owners, engineers, architects, and property managers can count on to develop cost-effective, corrective measures that can add years of useful life to a variety of structures, including industrial, commercial, healthcare, historic, educational and government buildings, parking structures, and sports stadiums. Western is headquartered in St. Louis, MO, with 30 branch offices nationwide and employs more than 1,200 salaried and hourly professionals who offer the best, time-tested techniques and innovative technology. For more information about Western Specialty Contractors, visit https://westernspecialtycontractors.com.
